官方博客  中文版 | ENGLISH

客服热线:0517-86930968;
               13951262528

当前位置:首页 > 调节阀系列 

品牌:

名称:ZZVP泄氮阀/微压调节阀

简介:

ZZVP泄氮阀/微压调节阀是一种不需要外加能源的执行器产品。当储罐内压力升高至设定压力时,快速泄放阀迅速开启,将罐内多余压力泄放。微压调节阀在储罐内压力降低时,开启阀门,向罐内充注氮气。因微压调节阀必须使用在压力为0.1Mpa压力以下,现场压力较高,必须安装ZZYP型压力调节阀将压力调节阀将压力降低至0.1Mpa以下才可使用。公称压力0.1Mpa,压力可按分段设定,从0.5Kpa 至66 Kpa以下,介质温度温度≤80℃。  

  • ZZVP泄氮阀003
    ZZVP泄氮阀/微压调节阀概述

    ZZVP泄氮阀/微压调节阀是一种不需要外加能源的执行器产品。当储罐内压力升高至设定压力时,快速泄放阀迅速开启,将罐内多余压力泄放。微压调节阀在储罐内压力降低时,开启阀门,向罐内充注氮气。因微压调节阀必须使用在压力为0.1Mpa压力以下,现场压力较高,必须安装ZZYP型压力调节阀将压力调节阀将压力降低至0.1Mpa以下才可使用。公称压力0.1Mpa,压力可按分段设定,从0.5Kpa 至66 Kpa以下,介质温度温度≤80℃。


    ZZVP泄氮阀/微压调节阀零件资料

    ·无需停止生产即可进行设定值的调整;
    ·无填料,阀杆上、下活动时不存在磨擦,上密封可靠;
    ·执行机构敏感元件极为灵敏,极微小的压力变化会被感测出来;

    ·阀体为四通形式,因而K、B型可通用一种阀体。

    ZZVP泄氮阀/微压调节阀主要技术参数和性能指标(表一)

     

    公称通径 DN(mm)

    20

    25

    32

    40

    50

    65

    80

    100

    额定流量

    系数 Kv

    ZZCP/ZZVP

    8

    11

    20

    32

    50

    80

    100

    160

    ZZCN

           

    53

    83

       

    额定行程 (mm)

    6

    8

    10

    15

    20

    公称压力 PN(MPa)

    0.10 1.0

    差压调节范围 (kPa)

    0.5 ~ 5.5 5 ~ 10 9 ~ 14 13 ~ 19

    18 ~ 24 22 ~ 28 26 ~ 33 31 ~ 38

    36 ~ 44 42 ~ 51 49 ~ 58 56 ~ 66

    64 ~ 78 76 ~ 90 8 ~ 100

    介质温度 ( ℃ )

    ≤ 80

    调节精度 ( % )

    ≤ 10

    允许泄漏

    量 (l/h)

    ZZCP/ZZVP

    10 -4 X 阀额定容量 ( Ⅳ 级 )

    ZZCN

    5X10 -3 X 阀额定容量 ( II 级 )

     

    注:1.ZZCP/ZZVP公称压力为0.10MPa,ZZCN为1.0MPa
           2.ZZCN差压调节范围为36~44…88~100kPa

    ZZVP泄氮阀001
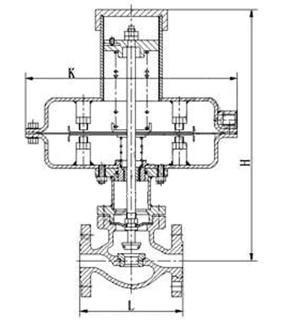
    ZZVP泄氮阀/微压调节阀外形尺寸及重量(表二) 单位:mm

     

     

    DN

    20

    25

    32

    40

    50

    65

    80

    100

    K

    308

    394

    308

    394

    308

    394

    394

    394

    H

    ZZCP/ZZVP

    376

    465

    365

    445

    445

    490

    490

    510

    ZZCN

           

    536

    536

       

    L

    ZZCP/ZZVP

    150

    160

    180

    200

    230

    290

    310

    350

    ZZCN

           

    222

    222

       

    重量 G(Kg)

    12

    13

    15

    17

    20

    28

    38

    43

    导压管螺纹接头

    M16X1.5

     

    氮封装置示意图

    ZZVP泄氮阀002

  •  
  •  
  •  
ZZYVP氮封阀 ZZYP自力式压力调节阀
在线客服系统