官方博客
中文版
|
ENGLISH
客服热线:0517-86930968;
13951262528
欢迎登陆【德克森仪表(淮安)有限公司】官方网站!
首页
新闻资讯
技术文章
流量计应用
仪表知识
产品中心
物位
压力
流量
温度
校验
显示
阀门
服务支持
技术方案
质量保证
资料下载
产品应用领域
关于我们
公司简介
联系我们
球阀系列
蝶阀系列
电磁阀系列
调节阀系列
切断(开关)阀系列
闸阀系列
管夹阀系列
电线电缆/伴热
当前位置:
首页
> 切断(开关)阀系列
品牌:
名称:
ZSQP气动活塞式单座快速切断阀
简介:
ZSQP气动活塞式单座快速切断阀是气动单元组合仪表中的执行单元。它接收来自调节仪表的信号,控制工艺管道内流体的切断与接通或切换流道。该产品具有操作力大,阀体设计新颖,流阻小、额定流量系数大、许用压差大、密封性能优良等优点。因而广泛应用于石油、化工、冶金、电力、轻纺等工业部门的生产过程自动控制与远程控制系统中。
产品特点
技术参数
订购选型
资料下载
ZSQP气动活塞式快速切断阀
一、ZSQP气动活塞式快速切断阀概述
气动活塞式快速切断阀(简称活塞式切断阀),是气动单元组合仪表中的执行单元。它接收来自调节仪表的信号,控制工艺管道内流体的切断与接通或切换流道。该产品具有操作力大,阀体设计新颖,流阻小、额定流量系数大、许用压差大、密封性能优良等优点。因而广泛应用于石油、化工、冶金、电力、轻纺等工业部门的生产过程自动控制与远程控制系统中。
二、ZSQP气动活塞式快速切断阀产品特点
气动活塞式快速切断阀由气动活塞式执行机构与直行程调节机构二部分组成,中间由支架连接而成。根据调节机构的型式,气动活塞式切断阀可分为直通单座切断阀(ZSQP型)、直通套筒切断阀(ZSQM型)、二位三通切断阀(ZSQN型)三种型式。气动活塞式执行机构有单作用(弹簧复位)和双作用(双进气)二种。采用单作用执行机构,整机作用方式可分为气关式(水平管路接通)和气开式(水平管路断开)。气动活塞式切断阀有硬密封和软密封两种密封形式,分别适用于不同的温度及压力。
当信号压力为零,由于弹簧(单作用仅有)的预紧力,使阀芯处于初始状态(常开或常闭)。当执行机构接到信号压力(0.4~0.6MPa)时,活塞上产生推力,压缩弹簧,带动推杆、阀体、阀芯移动到极限位置,使阀门全开或全关。达到对管道内介质接通、切断或管路间切换控制。配用二位三通电磁阀,使活塞式切断阀控制更加方便、简捷
三、ZSQP气动活塞式快速切断阀主要零件材料
主要零件材料: 阀体:HT200,ZG230~450或上述材质衬里
隔膜:丁荃胶、天然胶、聚四氟乙烯波纹
薄膜:丁腈橡胶夹增强涤纶织物
弹簧:60S12Mn 阀体衬里材质及适用范围
四、ZSQP气动活塞式快速切断阀规格与技术参数
公称通径 DN(mm)
20
25
32
40
50
65
80
100
额定流量系数 Kv
7
11
20
30
48
75
120
190
额定行程 (mm)
8
12
20
25
气缸直径 (mm)
75
100
150
允许泄漏量
硬密封 (1/h)
单座、三通: 1.2X10 -7 X 阀额定容量 套筒: 5X10 -6 X 阀额定容量
软密封
VI 级
工作温度 ( ℃ )
-20 ~ 200 -40 ~ 450
公称压力 PN (MPa)
1.6 4.0 6.4
允许压差 (MPa)
ZSQP
单作用
1.16
0.66
0.38
0.6
0.39
0.47
0.31
0.20
双作用
6.4
5.0
2.8
3.3
2.13
2.71
1.75
1.11
ZSQM
单作用
公称压力
双作用
ZSQN
单作用
0.89
0.57
0.35
0.56
0.36
0.45
0.30
0.20
双作用
5.2
3.22
2.03
2.27
1.46
2.00
1.32
0.85
信号压力 (kPa)
0 或 400 ~ 600
表中所列执行机构为标准配置,可根据工艺要求选配。
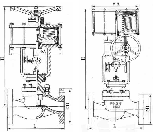
五、ZSQP气动活塞式快速切断阀外形尺寸及重量
公称通径 DN
L
A
H
L 1
H 1
A 1
重量 (Kg)
信号接头内螺纹
20
150
130
220
80
115
100
10
M10X1
25
160
130
220
80
120
100
12
32
180
150
235
80
130
100
15
40
200
150
235
95
138
120
18
50
230
150
240
95
155
120
25
65
290
280
250
105
178
160
30
80
310
280
260
105
207
160
40
100
350
280
265
105
222
160
60
六、ZSQP气动活塞式快速切断阀连接尺寸及标准
·法兰标准:铸铁法兰 GB4216-84 铸钢法兰 GB9113-88、JB/T79—94
·法兰密封面型式:PN16为凸面 PN40、64为凹凸面,阀体为凹面
·结构长度:GB12221-89
·执行机构信号接口:M10X1
*阀体法兰及法兰端面距可按用户指定的标准制造。如:ANSI、JIS、DIN等标准
相关产品
ZSHO气动O型切断球阀
ZDRO电动O型切断球阀
ZMQP型气动薄膜单座快速切断阀
主要产品类别:
物位仪表
/
压力仪表
/
流量仪表
/
温度仪表
/
校验仪表
/
显示仪表
/
阀门
/
联系我们
本站关键词:
电磁流量计
/
智能电磁流量计
/
一体式电磁流量计
/
分体式电磁流量计
/
插入式电磁流量计
/
卫生级电磁流量计
/
卫生型电磁流量计
/
锂电池供电电磁流量计
/
磁翻板液位计
/
磁性浮子液位计
/
磁性翻板式液位计
/
磁性翻柱式液位计
/
磁翻珠液位计
/
磁敏电子双色液位计
/
金属管浮子流量计
/
金属转子流量计
/
玻璃转子流量计
CopyRight@2012 /
德克森仪表(淮安)有限公司
/
www.dirksengroup.com
/ 版权所有 /
ICP备案编号:苏ICP备12059484号-1
/
苏公网安备:32083102000129号
/
网站Sitemap地图
友情链接交换QQ82559216:
超声波流量计
/
实验室仪器仪表网
/
温控器
/
成都废气处理
/
除锈剂
/
环氧地坪
/
在线客服系统