官方博客  中文版 | ENGLISH

客服热线:0517-86930968;
               13951262528

当前位置:首页 > 闸阀系列 

品牌:

名称:Z941W电动闸阀,不锈钢闸阀

简介:

Z941W电动闸阀,不锈钢闸阀开关动作速度可以调整,结构简单,易维护。碳钢材质电动闸阀适用于水油品蒸汽管路上温度≤425℃。  

  • Z941W电动不锈钢闸阀

    电动不锈钢闸阀应用规范:

    1、设计制造按GB12234-89

    2、结构长度按GB12221-89

    3、法兰尺寸按JB/T79-94

    4、阀门检查和试验按GB13927

    电动不锈钢闸阀性能规范

     

    型号
    公称压力
    (MPa)
    实验压力
    工作温度(℃)
    适用介质
    强度(水)(Mpa)
    密封(水)空气
    低压密封空气(Mpa)
    Z94IH-16C
    Z941W-16P(R)
    1.6
    2.4
    1.8
    0.6
    ≤200
    NITRICACID
    硝酸类
    ACETICACID
    醋酸类
    NITRICACID
    Z941W-25P(R)
    2.5
    3.8
    2.8
    0.6
    ≤200
    硝酸类
    Z941W-40P(R)
    4.0
    6.0
    4.4
    0.6
    ≤200
    ACETICACID
    Z941W-64P(R)
    6.4
    9.6
    7.0
    0.6
    ≤200
    醋酸类

     

    电动不锈钢闸阀主要零件材质

     

    阀体/阀盖
    ZG1Cr18Ni9Ti
    ZG00Cr18Ni10
    ZG1Cr18Ni12Mo2Ti
    ZG00Cr17Ni14Mo2
    WCB
    零件名称
    ZG1Cr18Ni9Ti系列
    ZG00Cr18Ni10系列
    ZG1Cr18Ni12Mo2Ti系列
    ZG00Cr17Ni14Mo2系列
    WCB系列
    闸板
    ZG1Cr18NI9Ti
    ZG00Cr18Ni10
    ZG1Cr18Ni12Mo2Ti
    ZG00Cr17Ni14Mo2
    1Cr13
    阀杆
    1Cr18Ni9Ti
    ooCr18Ni10
    1Cr18Ni12Mo2Ti
    ooCr17Ni14Mo2
    1Cr13
    填料
    PTFE编织
    PTFE编织
    PTFE编织
    PTFE编织
    石墨Graphite
    垫片
    304L+PTFE
    304L+PTFE
    316L+PTFE
    316L+PTFE
    石墨+304
    Graphite+304
    压盖
    ZG1Cr181Ni10
    ZG00Cr18Ni10
    ZG1Cr18Ni12Mo2Ti
    ZG00Cr17Ni14Mo2
    WCB
    填料压环
    1Cr18Ni9Ti
    00Cr18Ni10
    1Cr18Mi12Mo2Ti
    00Cr17Ni14Mo2
    1Cr13
    螺栓
    1Cr171Ni2
    1Cr171Ni2
    1Cr171Ni2
    1Cr171Ni2
    35CrMoA
    螺母
    1Cr18Ni9Ti
    1Cr18Ni9Ti
    1Cr18Ni9Ti
    1Cr18Ni9Ti
    45

     

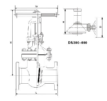
    Z941W电动闸阀,不锈钢闸阀


    电动不锈钢闸阀1.6MPa主要连接尺寸

    尺寸
    DN
    15
    20
    25
    32
    40
    50
    65
    80
    100
    125
    150
    200
    250
    300
    350
    400
    450
    500
    600
    L
    mm
    130
    150
    160
    180
    200
    250
    265
    280
    300
    325
    350
    400
    450
    500
    550
    600
    650
    700
    800
    H
    mm
    175
    180
    210
    210
    350
    358
    373
    435
    500
    614
    674
    818
    1225
    1415
    1630
    1780
    2050
    2181
    2599
    W
    mm
    180
    180
    200
    200
    200
    240
    240
    280
    320
    360
    360
    400
    450
    500
    500
    600
    720
    720
    720

     


    电动不锈钢闸阀2.5MPa主要连接尺寸

     

    尺寸
    DN
    15
    20
    25
    32
    40
    50
    65
    80
    100
    125
    150
    200
    250
    300
    350
    400
    450
    500
    600
    L
    mm
    130
    150
    160
    180
    200
    250
    265
    280
    300
    325
    350
    400
    450
    500
    550
    600
    650
    700
    800
    H
    mm
    175
    180
    210
    210
    350
    358
    373
    435
    500
    614
    674
    818
    1225
    1415
    1630
    1780
    2050
    2181
    2599
    W
    mm
    180
    180
    200
    200
    200
    240
    240
    280
    320
    360
    360
    400
    450
    500
    500
    600
    720
    720
    720

     

     

    电动不锈钢闸阀4.0MPa主要连接尺寸

     

    尺寸
    DN
    15
    20
    25
    32
    40
    50
    65
    80
    100
    125
    150
    200
    250
    300
    350
    400
    L
    mm
    130
    150
    160
    180
    200
    250
    280
    310
    350
    400
    450
    550
    650
    750
    850
    950
    H
    mm
    175
    180
    210
    210
    350
    358
    373
    435
    500
    614
    674
    818
    1225
    1415
    1630
    1780
    W
    mm
    180
    180
    200
    200
    200
    240
    240
    280
    320
    360
    360
    400
    450
    500
    500
    600

     


    电动不锈钢闸阀6.4MPa主要连接尺寸

     

    尺寸
    DN
    15
    20
    25
    32
    40
    50
    65
    80
    100
    125
    150
    200
    250
    300
    350
    400
    L
    mm
    170
    190
    210
    230
    240
    250
    280
    320
    350
    400
    450
    550
    650
    750
    850
    950
    H
    mm
    175
    180
    210
    230
    350
    359
    373
    435
    500
    614
    674
    818
    970
    1145
    1280
    1450
    W
    mm
    120
    120
    140
    160
    200
    240
    280
    320
    360
    400
    400
    450
    560
    640
    800
    800

     


    电动不锈钢闸阀10.0MPa主要连接尺寸

     

    尺寸
    DN
    15
    20
    25
    32
    40
    50
    65
    80
    100
    125
    150
    200
    250
    L
    mm
    170
    190
    210
    230
    240
    250
    280
    310
    350
    400
    450
    550
    650
    H
    mm
    175
    180
    210
    230
    350
    359
    373
    435
    500
    614
    674
    818
    970
    W
    mm
    120
    120
    160
    180
    240
    280
    320
    360
    400
    450
    560
    640
    720

     


    电动不锈钢闸阀16.0MPa主要连接尺寸

     

    尺寸
    DN
    15
    20
    25
    32
    40
    50
    65
    80
    100
    125
    150
    200
    L
    mm
    170
    190
    210
    230
    240
    300
    340
    390
    450
    525
    600
    750
    H
    mm
    175
    180
    210
    230
    350
    359
    373
    435
    500
    614
    674
    818
    W
    mm
    120
    120
    140
    160
    200
    240
    280
    320
    360
    400
    400
    450
  •  
  •  
  •  
Z673X气动浆液阀
在线客服系统