GJ641X气动管夹阀

GJ641X气动管夹阀概述
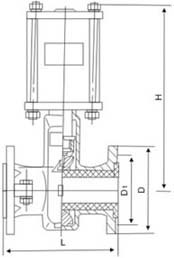
GJ641X型气动管夹阀结构和工作原理:
1结构:本阀门由左右阀体,橡胶管套、大小阀杆、上下闸板、导柱等零件组成。
2工作原理:当顺转手轮时,使大小阀杆同时带动上下闸板,压缩管套,进行关闭,反转即行开启,这样,闸板在导柱之间上下往复完成阀门开闭工作。另外,因橡胶管套承力,因此在开关时,操作人员旋转手轮时只要感到适量抵触,均己达到开闭极点,切勿尽力或多人辅助,禁用其他工具开闭。
G641X型气动管夹阀安装及维修: 伸向电触槽然后用铜丝或不锈钢箍扎紧二端。
气动管夹阀主要性能规范
|
适用温度
|
使用介质
|
|
≤85℃
|
矿浆、磨料、干湿型粉尘类
|
|
名称
|
材料
|
|
阀体
|
铸铁
|
|
套管
|
橡胶
|
|
阀杆
|
铸铜、碳钢
|
|
压杆
|
球墨铸铁
|
|
电动头
|
组合件
|
|
托架
|
球墨铸铁
|
|
公称通径
(DN)
|
公称压力
(MPa)
|
工作压力
(MPa)
|
L
|
L1
|
D
|
D1
|
Z-Φ
|
H
|
A
|
重量
(kg)
|
|
25
|
0.6
|
0.6
|
160
|
124
|
115
|
85
|
4-14
|
|
|
|
|
32
|
165
|
145
|
*140
|
100
|
4-18
|
|
|
|
|
40
|
190
|
157
|
*150
|
110
|
4-18
|
|
|
|
|
50
|
210
|
160
|
160
|
125
|
4-18
|
|
|
|
|
65
|
250
|
199
|
180
|
145
|
4-18
|
|
|
|
|
80
|
300
|
222
|
195
|
160
|
4-18
|
|
|
|
|
100
|
350
|
250
|
215
|
180
|
8-18
|
|
|
|
|
125
|
430
|
318
|
245
|
210
|
8-18
|
|
|
|
|
150
|
500
|
350
|
280
|
240
|
8-23
|
1000
|
265
|
|
|
200
|
0.4
|
0.4
|
650
|
446
|
335
|
295
|
8-23
|
1174
|
330
|
|
|
250
|
800
|
516
|
*395
|
350
|
12-23
|
|
|
|
|
300
|
950
|
562
|
*445
|
400
|
12-23
|
|
|
|
|
采用标准 设计与制造:Q/JBGN02 结构长度:Q/JBGN02 法兰连接尺寸:JB78(PN1.0MPa)
|
注:带*者法兰标准为GB4216(PN1.0MPa)