一、电动调节球阀 产品概述
本公司的ZAJQ电动调节球阀适用于两位切断、调节的场合。球阀与执行机构的连接采用直连方式,电动执行机构内置伺服系统,不用另配伺服放大器,输入4-20mA信号及220VAC电源便可控制运转。电动调节球阀具有连线简单,结构紧凑、尺寸小、重量轻、阻力小、动作稳定等优点。电动调节球阀通常用于密封要求严格的场合,除控制气体、液体、蒸汽介质外,还适宜控制污水和含有纤维性杂质的介质,主要用于石油、化工、冶金、轻工、造纸、电站、制冷等工作领域。电动调节球阀是一种重要的阀类,常应用于石油化工、长输管线等领域。球阀的关闭件是一个带孔的球体(或部分球),球体随阀杆转动,实现阀门的开启或关闭。电动调节球阀旋转90°便可全关全开,与相同规格的闸阀、截止阀比较、球阀体积小、重量轻,便于管道安装。
二、电动调节球阀 主要技术参数及性能
| 公称通径 DN(mm) |
15 |
20 |
25 |
32 |
40 |
50 |
65 |
80 |
100 |
125 |
150 |
200 |
250 |
300 |
| 额定流量系数KV |
21 |
38 |
72 |
112 |
170 |
273 |
384 |
512 |
940 |
1452 |
2222 |
3589 |
5128 |
7359 |
| 公称压力(MPa) |
PN1.6、2.5、4.0、6.4 MPa |
| 允许压差(MPa) |
≤ 公称压力 |
| 阀体形式 |
两段式阀体 |
| 压盖型式 |
螺栓压紧式 |
| 密封填料 |
V型聚四氟乙烯填料、柔性石墨填料等 |
| 连接形式 |
法兰、对夹、焊接、螺纹 |
| 阀芯形式 |
"O"型球型阀芯 |
| 流量特性 |
近似快开特性 |
| 泄露量Q |
按GB/T4213-92,小于额定KV0.01% |
| 基本误差 |
±1% |
| 回差 |
±1% |
| 死区 |
≤1% |
| 可调范围 |
250:1 |
350:1 |
| 配置执行器型号 |
HR、3610R、HQ、PSQ |
| 控制方式 |
开关到位灯(开关两位控制)、无源触点信号、1/5K电位计、智能调节(4~20mA模拟量信号控制) |
三、电动调节球阀 执行器技术参数
| 电源电压 |
AC220/380V,50/60Hz |
| 输出力矩 |
50N·M~2000N·M |
| 动作范围 |
0~90° 0~360° |
| 动作时间 |
15秒/30秒/60秒 |
| 保护装置 |
过热保护 |
| 环境温度 |
-30°~60° |
| 手动操作 |
同附带手柄操作 |
| 限位 |
电气、机械二重限位 |
| 防护等级 |
相当于IP-65 |
| 防爆等级 |
ExdII BT4;特殊要求可定制ExdII BT6 |
| 位置测量 |
可选装开关或电位计 |
| 驱动电机 |
8W/E |
| 进线接口 |
PE1/2〞进线线锁 |
四、电动调节球阀 主要零件材料
| 零件名称 |
材料名称 |
| 阀体 |
WCB |
304(CF8) |
316(CF8M) |
316L(CF3M) |
| 球体 |
2Cr13+氮化处理 |
304 |
316 |
316L |
| 阀杆 |
2Cr13 |
304 |
316 |
316L |
| 密封圈 |
聚四氟乙烯(PTFE)、增强聚四氟乙烯(PPL)、对位聚苯、柔性石墨 |
| 适用介质 |
水、气体、蒸汽、油品等 |
硝酸等腐蚀性介质 |
醋酸等腐蚀介质 |
尿素等腐蚀性介质 |
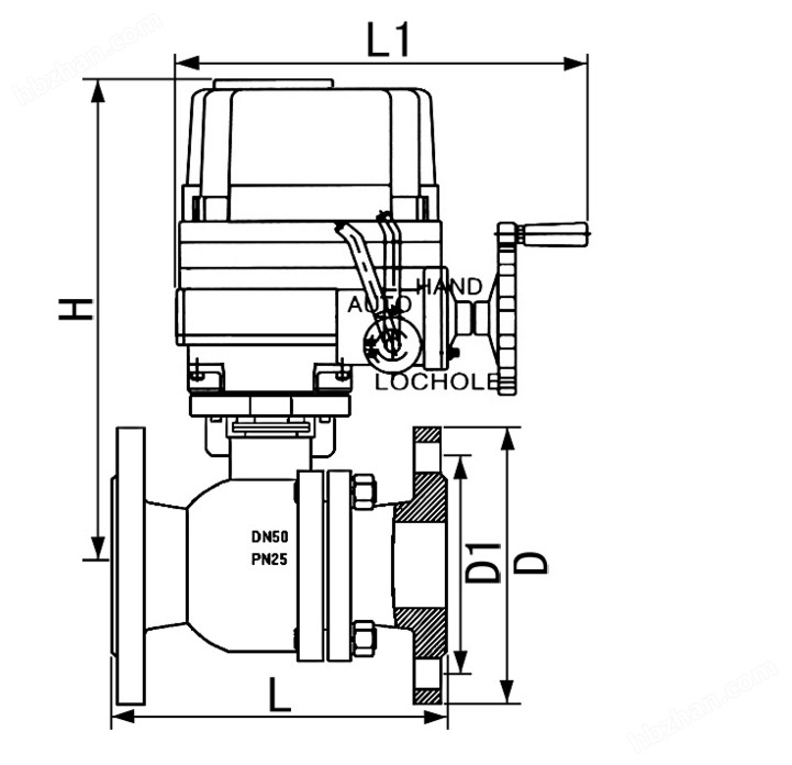
五、电动调节球阀 外形图
六、电动调节球阀 安装连接尺寸
